Land To Rear Of

Guide Price

£175,000

VIEW IMAGE GALLERY

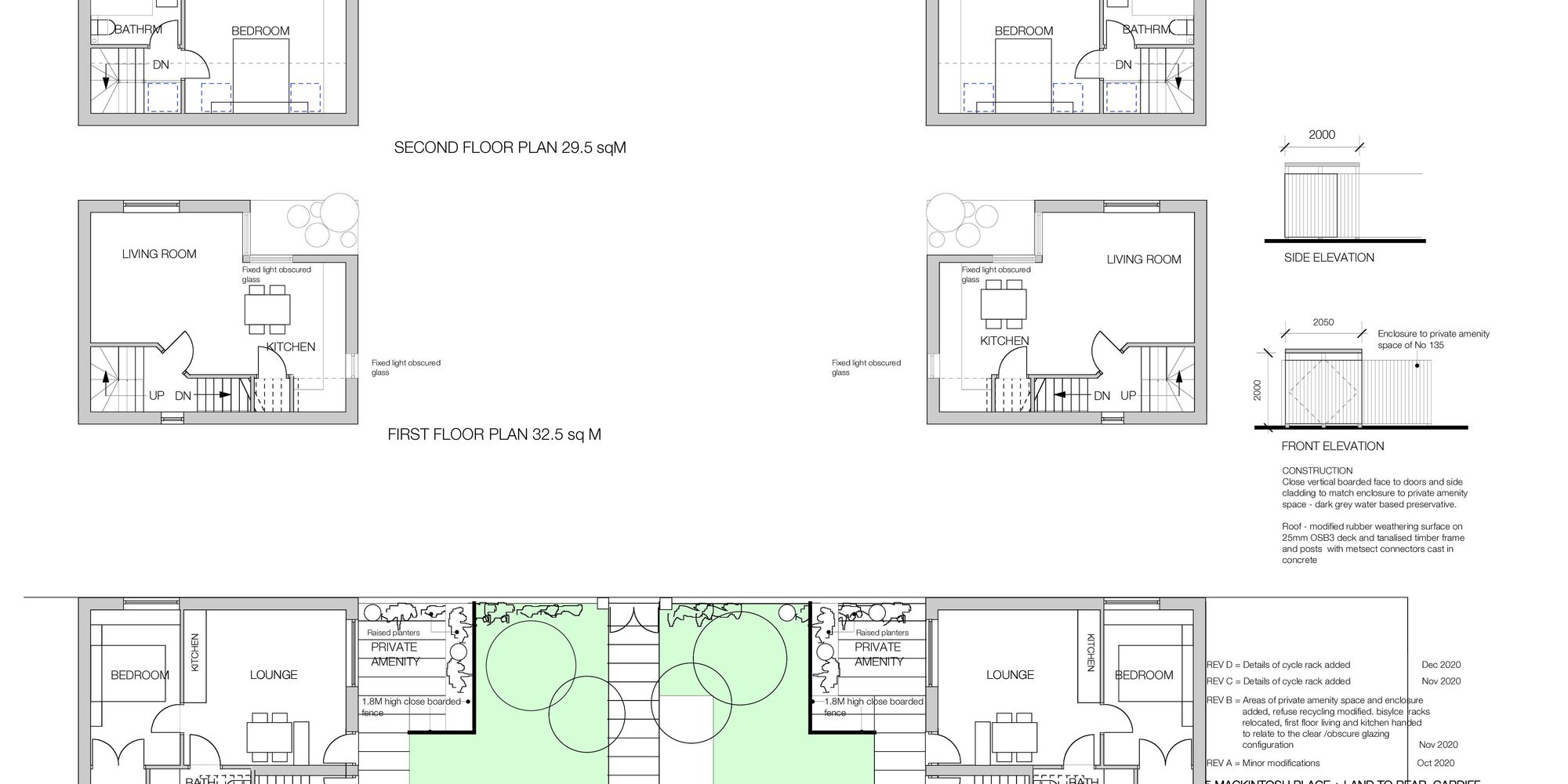
** INVESTMENT/DEVELOPMENT OPPORTUNITY ** FULL PLANNING PERMISSION ** MGY are pleased to offer this 0.53 acre parcel of land for sale, with full planning permission (planning no.20/00822/MNR) for the construction of 4 x new dwelling units consisting of 2 x...

Brochure icon

DOWNLOAD BROCHURE

Booking icon

BOOK A VIEWING

Book A Viewing

Ready to take the next step? Schedule a viewing for this property today! Simply provide your contact information, and we'll be in touch to arrange a convenient time. Your dream home is just a click away!

CONTACT

LAND TRANSACTION TAX CALCULATOR

MORTGAGE CALCULATOR

YOU MIGHT ALSO LIKE THESE

https://www.propertymark.co.uk/https://www.tpos.co.uk/https://www.tpos.co.uk/https://www.onthemarket.com/https://www.rightmove.co.uk/https://www.rics.org/https://www.alliedsurveyors.com/https://rentsmart.gov.wales/en/home/https://www.propertymark.co.uk/https://www.tenancydepositscheme.com/https://www.depositprotection.com/https://safeagents.co.uk/
https://www.propertymark.co.uk/https://www.tpos.co.uk/https://www.tpos.co.uk/https://www.onthemarket.com/https://www.rightmove.co.uk/https://www.rics.org/https://www.alliedsurveyors.com/https://rentsmart.gov.wales/en/home/https://www.propertymark.co.uk/https://www.tenancydepositscheme.com/https://www.depositprotection.com/https://safeagents.co.uk/
https://www.propertymark.co.uk/https://www.tpos.co.uk/https://www.tpos.co.uk/https://www.onthemarket.com/https://www.rightmove.co.uk/https://www.rics.org/https://www.alliedsurveyors.com/https://rentsmart.gov.wales/en/home/https://www.propertymark.co.uk/https://www.tenancydepositscheme.com/https://www.depositprotection.com/https://safeagents.co.uk/
PROPERTY SEARCH BOOK A VALUATION REGISTER WITH US SEND US A MESSAGE

Fatal error: Uncaught wfWAFStorageFileException: Unable to verify temporary file contents for atomic writing. in /home/street/public_html/wp-content/plugins/wordfence/vendor/wordfence/wf-waf/src/lib/storage/file.php:51 Stack trace: #0 /home/street/public_html/wp-content/plugins/wordfence/vendor/wordfence/wf-waf/src/lib/storage/file.php(658): wfWAFStorageFile::atomicFilePutContents() #1 [internal function]: wfWAFStorageFile->saveConfig() #2 {main} thrown in /home/street/public_html/wp-content/plugins/wordfence/vendor/wordfence/wf-waf/src/lib/storage/file.php on line 51